Rated 5 out of 5

Case Study: Thoughtfully-Designed Basement Transformation

Location: Millbury, MA

Price: $106,000

Timeline: 10 weeks

millbbury-basement-transformation-header

Part One: Initial Consultation

When it was clear they had outgrown their space, Shannon and Matt reached out to us seeking a solution to get more out of their home within budget.

A basement remodel was the clear answer to their problem. However, the basement was built in the 1960s and needed a lot of fixes to become the dream retreat area they’d dreamed of.

We went over their ideas on our phone call, came in to scout the area, and got a clearer picture of what needed to be done. They got to visualize multiple layout options and choose a design that would work for everyone.

Some of the challenges with their basement included…
Installing the emergency escape window required careful digging, shoring, and structural work to meet code.
The low headroom due to the house’s age needed to be worked around.
The plumbing for the new bathroom had to be connected to the town’s sewer and water systems.
The bedroom had to comply with the fire code to ensure safety in the event of an emergency.
Per Massachusetts’ code, we installed a new Energy Recovery Ventilator.

Part Two: Design And Construction

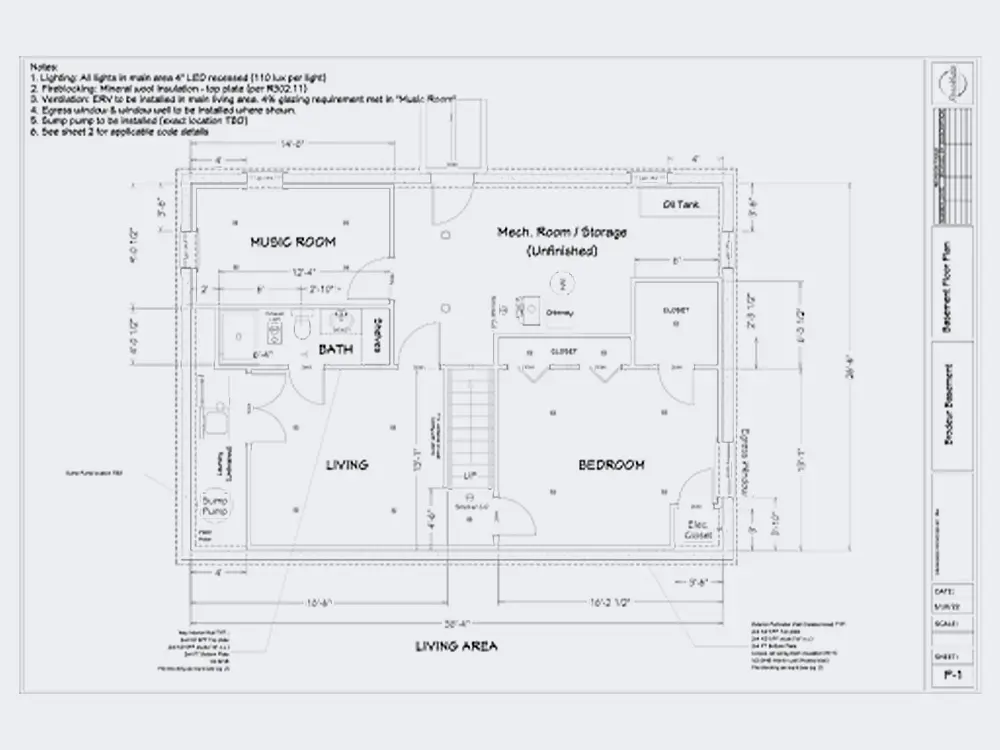
We followed our usual process, delivering complete 2D and 3D design plans that ensured the basement would be up to code and aligned with Shannon and Matt’s vision. This step was essential to pinpoint any mismatches between vision and execution and ensure that everything would run smoothly from start to finish.
Layout plan
3D design

Part Three: Project Walkthrough

Swipe through the images and see the transformation from start to finish.

Custom Basement Remodel

The total added up to $106,000

Hi! I’m Joshua, The Owner Of RenoVista Construction!

I started working in the trades from a very young age, under my father’s guidance. With experience in both hands-on construction and corporate leadership, I learned the value of hard work and strive to create a better, more respectful contractor–homeowner experience.

RenoVista Construction is your go-to for a seamless remodel that takes the hassle out of the project. You’ll get a plan that perfectly captures your vision, a clean and respectful team, and a result that you’ll be raving about for years to come.

450+

remodels completed

70+
decks built and repaired
30+
years of experience
5-Year
workmanship warranty

5-Star Remodeling Experience Every Time

Learn how much our customers enjoyed working with us.
Rated 5 out of 5

[…] Josh and his crew Marco, Devin and Jacob did a fantastic job! We couldn’t be happier!

When a couple of unforeseen issues came up, they were brought to our attention with options to remedy them.

We have received so many compliments on the work that they did. They were very professional, cleaned up after themselves every day, and were very respectful to our privacy and property. […]

e

Rated 5 out of 5

Josh is one of the nicest and most professional contractors I have ever had the pleasure of working with.

I would highly recommend him and the entire Renovista team.

Rated 5 out of 5

Hired Renovista for a bathroom gut and remodel. Zero complaints. From start to finish Josh and his crew were fantastic to work with.

The proposal process was straightforward and smooth. The construction was great with an attention to detail and any issues were fixed without hassle.

Highly recommend Renovista and look forward to working with them again in the future.

Excellent

Rated 5 out of 5

5-star-rated on

Get Started On Your Dream Remodel With An Expert Team Today

(takes 1-2 min)