Rated 5 out of 5

Case Study: Custom Modern Basement Transformation

Location: Millbury, MA

Price: $73,108

Timeline: 10 weeks

gallery-placeholder-1.webp
gallery-placeholder-1.webp

Part One: Initial Consultation

Alejandra and Adam Forsblom decided it was finally time to transform their dark and unused basement into a second living area they could fully enjoy. They dreamed of cozy movie nights, playtime, quiet relaxation, and custom-built-ins to enhance their storage space and add small touches to make it feel like home.

To make it possible, they needed an experienced contractor who could handle the complexity of a full basement build-out without going over schedule and budget. 

Our structured timeline and transparent scope of work during the phone consultation convinced them that RenoVista was the team they were looking for. We came over to map out the plans and get started on the Forsbloms’ dream basement.

Some of the challenges with their basement included…
The space was unfinished, with concrete floors, exposed framing, and little insulation.
Installing the egress window involved excavation, framing, and waterproofing.
The headroom was maintained using low-profile 2×2 drop ceiling panels for a sleek look.
The existing staircase and trim underwent major upgrades, including custom storage.
The space needed electrical work to provide bright lighting, with concealed HVAC and electrical lines.

Part Two: Design And Construction

The Chief Architect turned the Forbloms’ ideas into code-compliant 2D and 3D plans, complete with solutions for every custom feature. Alejandra felt confident knowing that our experienced crew had everything planned out, including handling of the permitting process. As construction progressed, each feature was masterfully worked in with expert problem-solving and attention to detail.
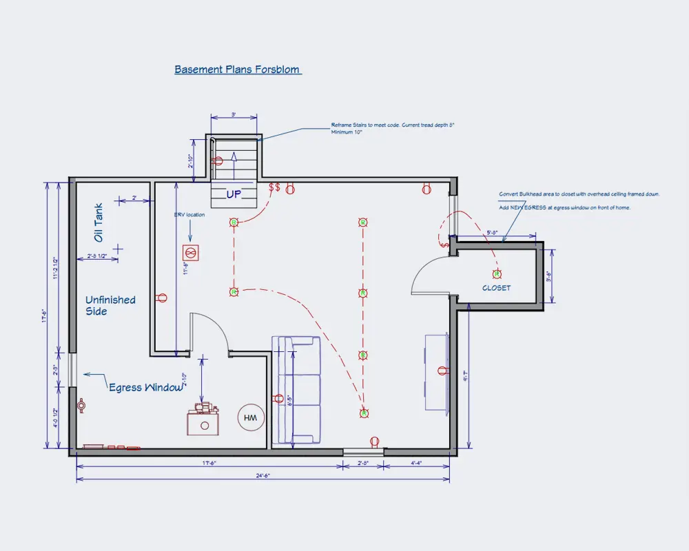
Layout Plan
3D Design
3D Design
Construction Phase

Part Three: Project Walkthrough

Swipe through the images and see the transformation from start to finish.

Custom Basement Remodel

The total added up to $73,108.

Hi! I’m Joshua, The Owner Of RenoVista Construction!

I started working in the trades from a very young age, under my father’s guidance. With experience in both hands-on construction and corporate leadership, I learned the value of hard work and strive to create a better, more respectful contractor–homeowner experience.

RenoVista Construction is your go-to for a seamless remodel that takes the hassle out of the project. You’ll get a plan that perfectly captures your vision, a clean and respectful team, and a result that you’ll be raving about for years to come.

450+

remodels completed

70+
decks built and repaired
30+
years of experience
5-Year
workmanship warranty

5-Star Remodeling Experience Every Time

Learn how much our customers enjoyed working with us.

r

Rated 5 out of 5

We had our basement finished (sitting area, bathroom and bedroom). I spoke with several contractors and I felt an instant sense of honesty with Josh.

He was fantastic. Very patient with me through all of my back and forth and paid great attention to detail. He and his assistant Marco were always on time. Even the contractors he hired to do electrical and plumbing were great.

I also had a few minor issues arise months after the job was complete and he always responds and will come out to my house within a day or two. I would definitely recommend him to anyone.

e

Rated 5 out of 5

Josh is one of the nicest and most professional contractors I have ever had the pleasure of working with.

I would highly recommend him and the entire Renovista team.

Rated 5 out of 5

Last winter, we had use RenoVista to finish our 1,500 square foot basement. They added a full bath, kitchen, gym, family room, play room and lots of storage. […]

The ENTIRE team at Renovista is an absolute joy to work with. They arrive on time, clean up each day and are incredibly respectful to minimize the distractions that construction can cause. The quality of their work is outstanding as well. […]

I cannot recommend them enough! By far the best I have ever worked with in remodeling or construction!

Excellent

Rated 5 out of 5

5-star-rated on

Turn Your Basement Into A Welcoming Space For Family Time

(takes 1-2 min)