Rated 5 out of 5

Case Study: Family Basement Renewal

Location: Northborough, MA

Price: $71,431

Timeline: 7 weeks

rivero-basement-remodel-benefit

Part One: Initial Consultation

The Rivero family’s unfinished basement sat quietly beneath their feet, unused and forgotten. They knew it held the potential to be a modern, clean, and cozy space as they’d seen on TV, but didn’t have the confidence to hire a contractor and make it a reality.

In their dream basement remodel, they’d have a modern, well-equipped entertainment and relaxation area, neatly connected to the rest of their home. On their to-do list of features, bright lighting, a smooth ceiling, and custom hidden storage were some of the checkmarks to cross off.

Once they’d been introduced to our clear remodeling process, things got moving. Our expert craftsmanship, transparent pricing, and a very detailed scope of work during the initial phone call were what made them sign the contract.

Some of the challenges with their basement included…
The lack of insulation made the temperature dependent on the outside weather.
The unfinished walls exposed the framing, making the space unusable.
The family wanted built-in storage without cluttering the basement.
A complete ERV system was installed for fresh air circulation.
The basement required new circuits, outlets, and closet lighting.

Part Two: Design And Construction

The final design plans developed by our in-house architect were approved after a round of revisions, and construction began. After laying the groundwork (framing the walls, ceilings, and soffits; insulating; having the electrical system in place), we could finally move on to the custom aspects that brought the place together and made it personal to the Riveros.
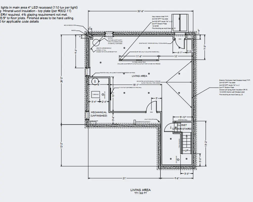
Layout plan
Construction Phase

Part Three: Project Walkthrough

Swipe through the images and see the transformation from start to finish.

Full Basement Renovation

The total added up to $71,431.

Hi! I’m Joshua, The Owner Of RenoVista Construction!

I started working in the trades from a very young age, under my father’s guidance. With experience in both hands-on construction and corporate leadership, I learned the value of hard work and strive to create a better, more respectful contractor–homeowner experience.

RenoVista Construction is your go-to for a seamless remodel that takes the hassle out of the project. You’ll get a plan that perfectly captures your vision, a clean and respectful team, and a result that you’ll be raving about for years to come.

450+

remodels completed

70+
decks built and repaired
30+
years of experience
5-Year
workmanship warranty

5-Star Remodeling Experience Every Time

Learn how much our customers enjoyed working with us.

a

Rated 5 out of 5

I cannot say enough good things about RenoVista, but I am going to try! Initially we needed some structural repairs to our guest bathroom but while Josh was out for an estimate we had him work up some pricing on a few other things as well. […]

RenoVista was one of 3 contractors we contacted and he was the only one to provide a thorough, comprehensive, itemized estimate that was also in line with market value. […]

Josh and his men were extremely professional, trustworthy, timely, informative at every step and provided a quality level of work that is simply difficult to find these days. […]

Rated 5 out of 5

Last winter, we had use RenoVista to finish our 1,500 square foot basement. They added a full bath, kitchen, gym, family room, play room and lots of storage. […]

The ENTIRE team at Renovista is an absolute joy to work with. They arrive on time, clean up each day and are incredibly respectful to minimize the distractions that construction can cause. The quality of their work is outstanding as well. […]

I cannot recommend them enough! By far the best I have ever worked with in remodeling or construction!

Rated 5 out of 5

We recently had our basement finished by RenoVista, and we couldn’t be happier with the results. From start to finish, their team exhibited exceptional professionalism and dedication to quality.

Communication was top-notch throughout the project. They kept us informed at every stage, promptly answering any questions we had and ensuring we were comfortable with the progress.[…]

We highly recommend Josh and his team to anyone looking for a reliable, professional contractor who delivers excellent results. Thank you for transforming our basement into a beautiful, functional space!

Excellent

Rated 5 out of 5

5-star-rated on

Turn Your Unused Basement Into A Dream Retreat

(takes 1-2 min)